松本市深志2丁目
29,500万円
松本駅から徒歩7分、松本城へも徒歩12分とアクセス良好で、観光・ビジネス双方の需要が見込める立地が魅力です。
周辺には商業施設やホテル、金融機関、オフィスが集積しており、事業拠点として非常に高いポテンシャルを有しています。
集客・営業のしやすさはもちろん、テナント需要も期待できるエリアです。
さらに駐車場も完備しており、来客対応や従業員利用にも便利。
立地・利便性・将来性のバランスが取れた、事業用不動産としておすすめの物件です。
この物件について
フォームで問い合わせる
電話で問い合わせる
0263-50-4195
営業時間 9:00~18:00 / 水曜定休
電話で問い合わせる
0263-50-4195
営業時間 9:00~18:00 / 水曜定休
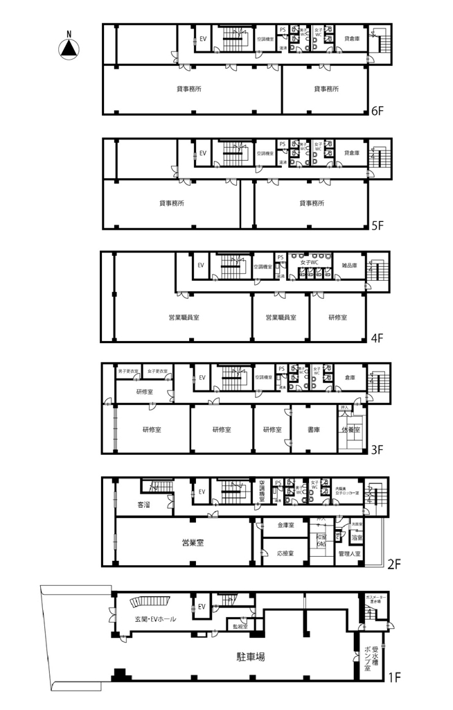
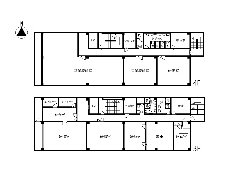
・耐震補強工事実施済み(平成20年10月)
・1階車庫あり(縦列4~5台駐車可)、1階駐輪場あり
・別棟車庫あり(縦列8台駐車可)
※建物・設備の詳細状況につきましては、直接お問い合わせください。
この物件について
フォームで問い合わせる
電話で問い合わせる
0263-50-4195
営業時間 9:00~18:00 / 水曜定休
電話で問い合わせる
0263-50-4195
営業時間 9:00~18:00 / 水曜定休








