松本市宮渕3丁目
4,100万円
電車:篠ノ井線 松本駅 距離(2000m) 徒歩25分 車12分
バス:松本市バス アルプス公園線 バス停「丸の内中学校前バス停」 距離(250m) 徒歩4分
一級建築士であるオーナー様のご主人様が自ら設計したこだわりのデザイン住宅で、開放感あふれるリビングからは松本市街地や美ヶ原を望む眺望良好なロケーションが魅力。室内にはペレットストーブを備え、寒い信州の冬も暖かく快適に過ごせます。テラスやガーデニングスペースもあり、ご家族でゆったりとしたおうち時間を楽しめます。
駐車は車種により2台可能。北松本駅徒歩約1.1km、スーパー・コンビニ徒歩約10分と生活利便性も良好。住環境と利便性を兼ね備えた住まいを、ぜひ現地でご体感ください。
この物件について
フォームで問い合わせる
電話で問い合わせる
0263-50-4195
営業時間 9:00~18:00 / 水曜定休
電話で問い合わせる
0263-50-4195
営業時間 9:00~18:00 / 水曜定休
北西側 公道 幅員3.6m
※現在居住中のため、ご見学をご希望の際は事前にご予約をお願いいたします。
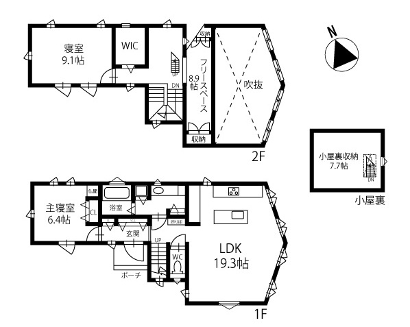
【建物】木造枠組壁工法(一部2×4・2×6)。外壁・屋根下断熱材の内側に気密シート0.2mm施工。屋根下は高性能グラスウール180mm、外壁140mm、床下はXPS(押出法ポリスチレンフォーム)90mmを採用し、高い断熱・気密性能を確保。屋根は耐久性に優れたガルバリウム鋼板、外装は杉板(防腐塗装)+一部塗り壁仕上げ。窓はPVC枠Low-Eペアガラス(アルゴンガス入)、玄関は輸入断熱ドア。内装はドライウォール塗装仕上げ、床は木製フロア12mm厚。
【設備】LIXILキッチン2600mm(IH・食洗機・パナソニック製浄水器、バックキャビネット2700mm)、UB1坪、洗面1200mm、サティストイレ(手洗いカウンター付)。日立エコキュート370L寒冷地仕様(追焚付)。24時間換気(第三種)、トイレ・脱衣室換気扇、各室吸気口。エアコン3台、吹抜けシーリングファン、イタリア製ペレットストーブ、モニターホン、各室照明、屋根裏収納(天井収納階段)・キッチン床下収納あり。
この物件について
フォームで問い合わせる
電話で問い合わせる
0263-50-4195
営業時間 9:00~18:00 / 水曜定休
電話で問い合わせる
0263-50-4195
営業時間 9:00~18:00 / 水曜定休

























